 |
|
|
|
|
|

|
|

|
FREELANCE ARCHITECTURAL SERVICES
|
|

|
|
|
|

|
|

|
Simon Coggins-Hill
FREIGERICHT, GERMANY Tel. +49 (0)6055 90 75 40 info@building-futures.eu
|
|

|
|

|
Chartered Architectural Technologist
|
|

|
|
|
 |
|

|
Building Regulations & Approvals
|
|
|
 |
 |
|

|
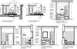
Internal Fit-Out Layouts
|
|
|
|
 |
|

|
Planning Applications & Approvals
|
|
|
 |
 |
|

|
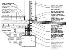
Working Details for Construction
|
|
|
 |
|
|